プリマヴェーラ春日部 埼玉県春日部市粕壁東1|2,480万円の中古マンション|分譲マンション情報|株式会社good base

  • good baseのLINE問い合わせ
  • good baseのInstagram
tel:048-795-4312

10:00〜18:00(毎週火・水定休)

中古マンション

プリマヴェーラ春日部
お気に入り
価格 2,480万円 ローンシミュレーション
所在地 埼玉県春日部市粕壁東1
この地域周辺の物件を見る
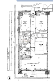
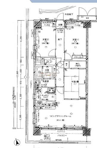
専有面積 77u
交通
東武伊勢崎線 春日部 徒歩5分
管理費等 15,000円 修繕積立金 13,945円
所在階/階数 -/-階建 築年月 1999年築 バルコニー面積 -
間取り 3LDK (-)
ここがおすすめ

『春日部駅』徒歩5分♪1999年築・3LDK◎ペット可マンション◎住環境良好☆彡
『初めての住宅購入、何から始めればいいかわからない!』そんなお客様に経験豊富なスタッフがわかりやすく丁寧にご案内致します。また住宅ローンの審査に不安がある方や自己資金が不安な方など提携金融機関との強みがあるgoodbaseにお任せ下さい。

■good baseでご見学のメリット
(1)お客様にわかりやすい資金計画書を作成しご説明致します!
(2)自己資金0円で住宅購入できます!
(3)「知りたい情報だけ」の短時間のご見学も可能です。
(4)土地調査レポートをプレゼント!(例) 液状化の可能性や浸水・土壌汚染のレポートになります♪


  • 現地外観写真 -
  • 間取り図 -
お問い合わせ、資料請求、見学のお申し込みはこちらから

電話をかける(携帯・PHS可)
048-795-4312
「ホームページを見た」とお伝え下さい。

お問い合わせ番号をお伝えください
RHS-M0102

内見予約
お問合せ

セールスポイント

特徴
  • フローリング
  • システムキッチン
  • カウンターキッチン
  • シャンプードレッサー
  • 追い焚き
  • シャワー
  • バス・トイレ別
  • 室内洗濯機置場
  • 温水洗浄便座
  • 和室
  • コンロ三口
  • クローゼット
  • バルコニー
  • エレベーター
  • TVドアホン
  • ペット可
セールスコメント 『048‐795‐4312』までお気軽にご連絡ください。事前にご連絡いただければ、早朝や夜間のご見学も対応致します♪■goodbaseでのご見学のメリット■経験豊富なスタッフが住宅ローンの悩みを解消します。■自己資金0円で住宅購入できます!■「知りたい情報だけ」という短時間のご見学も可能です。■お引き渡しまで全てのお手続きに同行サポート致します♪

物件概要

採光面 - 取引態様 仲介
現況 空家 引渡し 相談
総戸数 - 構造 RC造
テラス面積 - 専用庭面積 -
駐車場 - 駐輪場 -
建物権利 区分所有 土地権利 -
用途地域 - - - 管理態様 管理形態:-
管理組合:-
管理会社:-
情報更新日 2025年10月21日 次回更新日 2025年11月04日
※各種情報と差異がある場合は現況優先となります

学区情報

小学校区 春日部市立粕壁小学校
(埼玉県春日部市)
この学区の他の物件を見る
中学校区 春日部中学校
(埼玉県春日部市)
この学区の他の物件を見る
※物件情報の学区情報について
当サイト物件情報に記載されております通学区域(学区)情報は、国土数値情報ダウンロードサービスが提供する小学校区データ【2016年度】及び中学校区データ【2016年度】を元に加工したものですので、記載情報が現在の学区域と異なる場合がございます。
国土数値情報ダウンロードサービスのWEBサイト上で記述通り、データは必ずしも正確とは言えません。また、通学区域(学区)は毎年見直しの対象となりますので、そちらを踏まえ学区情報は参考としてご活用下さい。
お問い合わせ、資料請求、見学のお申し込みはこちらから

電話をかける(携帯・PHS可)
048-795-4312
「ホームページを見た」とお伝え下さい。

お問い合わせ番号をお伝えください
RHS-M0102

内見予約
お問合せ

この物件でローンシミュレーションする

価格 万円
年利率
ボーナス払い 返済年数
頭金 直接入力する 万円

毎月のご返済額

ボーナス(×年2回)

物件価格

2,480万円
※返済金額はあくまでも目安です。
  • こちらの物件を見たお客様はこんな物件もチェックしています。
  • お気に入り物件

電話でお問い合わせ
株式会社 good base

電話をかける

048-795-4312

※「ホームページを見た」とお伝えください。
お問い合わせ番号をお伝えください
RHS-M0102

お問い合わせ

お問い合わせ内容
お問合せ内容必須
【備考欄】
詳細な見学ご希望時間、ご質問、ご希望条件などがございましたらお聞かせ下さい。
(2000文字以内)
お客様情報
お名前必須
連絡先必須 メールアドレス

※ご記入いただいたメールアドレス宛てに、お問合せ内容の確認メールをお送りいたします。
※Yahoo!メールなどのフリーメールをご利用の場合、迷惑メールフォルダに入る場合があります。
 迷惑メールのフォルダ・設定等をご確認下さい。
電話番号
FAX(任意)
※ご入力いただいたお客さまの個人情報は、「個人情報の取扱いについて」に基づき適正に取り扱います。必ずお読みになり、同意の上お問い合わせください。

お気軽にお問い合わせください

048-795-4312
物件番号 RHS-M0102
※「ホームページを見た」
とお伝え下さい。

無料会員様限定4つの特典

  • 1:写真撮影サービス
  • 2:未公開物件の閲覧
  • 3:専用のマイページ
  • 4:最新新着物件通知

会員登録はこちら

物件を探す

エリアから探す

  • 幸手市
  • 宮代町
  • 杉戸町
  • 春日部市
  • 越谷市
  • 松伏町
  • さいたま市岩槻区

お知らせ

もっと見る

住宅ローンのお悩み、解決します。

他社で断られてしまった方や、
初めての方も、安心してお任せください。

ローン相談はこちら

バーチャルホームステージングで不動産売却をサポート

売却が初めてという方でも丁寧にご説明致します。
お気軽にご相談くださいませ。

株式会社 good base

  • 埼玉県春日部市粕壁東1-21-21
  • 東武スカイツリーライン
    春日部駅より徒歩10分
  • TEL:048-795-4312
  • FAX:048-795-4313
  • MAIL:info@goodbase.co.jp
  • 営業時間:10:00〜18:00
  • 定休日:毎週火曜日・水曜日
  • お客様の声
  • スタッフ紹介
  • スタッフブログ
  • WEBチラシ
売却の相談をする