| 価格 | 1,690万円 ![]() |
||||
|---|---|---|---|---|---|
| 所在地 | 埼玉県春日部市増富
この地域周辺の物件を見る |
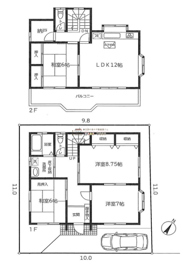
土地面積 | 110m² (33.28坪) | 建物面積 | 103u |
| 築年月 | 1999年築 | 間取り | 4SLDK (-) | ||
| 交通 |
東武野田線 豊春 徒歩15分
|
||||
電話をかける(携帯・PHS可)
048-795-4312
「ホームページを見た」とお伝え下さい。
お問い合わせ番号をお伝えください
RHS-U0027
| 特徴 |
|
|---|---|
| セールスコメント | 『048‐795‐4312』までお気軽にご連絡ください。事前にご連絡いただければ、早朝や夜間のご見学も対応致します♪■goodbaseでのご見学のメリット■経験豊富なスタッフが住宅ローンの悩みを解消します。■自己資金0円で住宅購入できます!■「知りたい情報だけ」という短時間のご見学も可能です。■お引き渡しまで全てのお手続きに同行サポート致します♪ |
| 採光面 | - | 構造/階数 | 木造/地上2階建 |
|---|---|---|---|
| 建ぺい率 | -(%) | 容積率 | -(%) |
| 駐車場 | - | 現況/引渡し | 空家/相談 |
| 土地権利 | - | 私道負担面積 | - |
| 接道状況 | - | 用途地域 |
-
|
| セットバック | - | 法令上の制限 | - |
| 地目 | 宅地 | 地勢 | |
| 建築確認番号 | 都市計画 | - | |
| 取引態様 | 仲介 | ||
| 情報更新日 | 2025年11月02日 | 次回更新日 | 2025年11月16日 |
| 小学校区 | 春日部市立立野小学校 (埼玉県春日部市) この学区の他の物件を見る |
中学校区 | 大増中学校 (埼玉県春日部市) この学区の他の物件を見る |
|---|
電話をかける(携帯・PHS可)
048-795-4312
「ホームページを見た」とお伝え下さい。
お問い合わせ番号をお伝えください
RHS-U0027
| 価格 | 万円 | ||
|---|---|---|---|
| 年利率 | % |
||
| ボーナス払い | 返済年数 | ||
| 頭金 | 直接入力する | 万円 | |

毎月のご返済額 |
ボーナス(×年2回) |
物件価格1,690万円 |
![]() |
![]() |
春日部市増富
1280万円〜2180万円 |
電話をかける(携帯・PHS可)
048-795-4312
「ホームページを見た」とお伝え下さい。
お問い合わせ番号をお伝えください
RHS-U0027
『豊春駅』徒歩15分☆彡1999年築・4SLDK◎うれしいリフォーム済物件☆彡住環境良好☆彡納戸付きで収納豊富◎カースペース1台◎
『初めての住宅購入、何から始めればいいかわからない!』そんなお客様に経験豊富なスタッフがわかりやすく丁寧にご案内致します。また住宅ローンの審査に不安がある方や自己資金が不安な方など提携金融機関との強みがあるgoodbaseにお任せ下さい。
■good baseでご見学のメリット
(1)お客様にわかりやすい資金計画書を作成しご説明致します!
(2)自己資金0円で住宅購入できます!
(3)「知りたい情報だけ」の短時間のご見学も可能です。
(4)土地調査レポートをプレゼント!(例) 液状化の可能性や浸水・土壌汚染のレポートになります♪